QB2法兰双口快速排气阀

法兰双口快速排气阀法兰双口快速排气阀,法兰双口快速排气阀,排气阀产品广泛应用于市政建设、农田水利、火力发电、石油化工、冶金矿山、消防环保、食品、航运、医药和轻纺等各个领域。
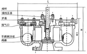
法兰双口快速排气阀作用原理:
当需要排出管道内的气体时,应逆时针方向旋转阀杆,使其阀杆连同阀门上升,使管道内的空气在水的压强作用下进入体腔内,并从排气嘴排出,随之管道内的水充满体腔内,使浮球在水的浮力作用下,向上移动将排气嘴堵塞,达到自行密封,管道在正常行中,水中的空气在压强的作用下,不断排入排气阀的体腔上部,迫使浮球下降,离开原来密封位置,这时空气又从排气嘴排出,随之,浮球又恢复到原来位置自密封,因此,排气阀在正常工作中阀门始终是开着的,浮球不断重复上述动作,空气不断排出,当需要检修或清扫体腔时,应将阀门关闭。本排气阀,顺时针旋转阀杆时为关闭。
法兰双口快速排气阀用途及主要性能规范:
本阀适用于温度不超过100℃的水、热水管道上使管道内的空气全部排出。
⑴注:D>350mm管路请选单口排气阀(QB1-10)。
⑵安装双口排气阀,底下一定要安装一只保护阀门、球阀(Q41F-16),以免检验停水。
⑶如需方求方本排气阀法兰大小尺寸如变动,请在合同上注明法兰连接尺寸。
本排气阀适用水、热水、高温度100℃的管道上,使管道内的气体全部排出。
法兰双口快速排气阀主要零件材料:
|
1
|
2
|
3
|
4
|
5
|
6
|
7
|
8
|
9
|
10
|
|
阀体
|
密封垫
|
阀 瓣
|
开槽锥端定位螺钉
|
阀杆
|
空心球
|
阀盖
|
垫片
|
填料
|
排气口垫片
|
|
11
|
12
|
13
|
14
|
15
|
16
|
17
|
18
|
19
|
|
排气端盖
|
螺母
|
护盖
|
螺母
|
专用螺柱
|
双头螺柱
|
填料压盖
|
螺母
|
双头螺柱
|
|
双口排气阀、球阀主要外形及连接尺寸 |
||||||||||||||||||||||||||||||||||||||||||||||||||||||||||||||||||||||||||||||||||||||||||||||||||
|
||||||||||||||||||||||||||||||||||||||||||||||||||||||||||||||||||||||||||||||||||||||||||||||||||

