产品分类
产品展示
Products Center
您的位置:勤龙科技 >> 产品展示 >> 阀门系列 >> 闸阀系列 >> Z941W电动闸阀
Z941W电动闸阀

电动不锈钢闸阀应用规范:
1、设计制造按GB12234-89
2、结构长度按GB12221-89
3、法兰尺寸按JB/T79-94
4、阀门检查和试验按GB13927
电动不锈钢闸阀性能规范
|
型号
|
公称压力
(MPa) |
实验压力
|
工作温度(℃)
|
适用介质
|
||
|
强度(水)(Mpa)
|
密封(水)空气
|
低压密封空气(Mpa)
|
||||
|
Z94IH-16C
Z941W-16P(R) |
1.6
|
2.4
|
1.8
|
0.6
|
≤200
|
NITRICACID
|
|
硝酸类
|
||||||
|
ACETICACID
|
||||||
|
醋酸类
|
||||||
|
NITRICACID
|
||||||
|
Z941W-25P(R)
|
2.5
|
3.8
|
2.8
|
0.6
|
≤200
|
硝酸类
|
|
Z941W-40P(R)
|
4.0
|
6.0
|
4.4
|
0.6
|
≤200
|
ACETICACID
|
|
Z941W-64P(R)
|
6.4
|
9.6
|
7.0
|
0.6
|
≤200
|
醋酸类
|
电动不锈钢闸阀主要零件材质
|
阀体/阀盖
|
ZG1Cr18Ni9Ti
|
ZG00Cr18Ni10
|
ZG1Cr18Ni12Mo2Ti
|
ZG00Cr17Ni14Mo2
|
WCB
|
|
零件名称
|
ZG1Cr18Ni9Ti系列
|
ZG00Cr18Ni10系列
|
ZG1Cr18Ni12Mo2Ti系列
|
ZG00Cr17Ni14Mo2系列
|
WCB系列
|
|
闸板
|
ZG1Cr18NI9Ti
|
ZG00Cr18Ni10
|
ZG1Cr18Ni12Mo2Ti
|
ZG00Cr17Ni14Mo2
|
1Cr13
|
|
阀杆
|
1Cr18Ni9Ti
|
ooCr18Ni10
|
1Cr18Ni12Mo2Ti
|
ooCr17Ni14Mo2
|
1Cr13
|
|
填料
|
PTFE编织
|
PTFE编织
|
PTFE编织
|
PTFE编织
|
石墨Graphite
|
|
垫片
|
304L+PTFE
|
304L+PTFE
|
316L+PTFE
|
316L+PTFE
|
石墨+304
Graphite+304 |
|
压盖
|
ZG1Cr181Ni10
|
ZG00Cr18Ni10
|
ZG1Cr18Ni12Mo2Ti
|
ZG00Cr17Ni14Mo2
|
WCB
|
|
填料压环
|
1Cr18Ni9Ti
|
00Cr18Ni10
|
1Cr18Mi12Mo2Ti
|
00Cr17Ni14Mo2
|
1Cr13
|
|
螺栓
|
1Cr171Ni2
|
1Cr171Ni2
|
1Cr171Ni2
|
1Cr171Ni2
|
35CrMoA
|
|
螺母
|
1Cr18Ni9Ti
|
1Cr18Ni9Ti
|
1Cr18Ni9Ti
|
1Cr18Ni9Ti
|
45
|

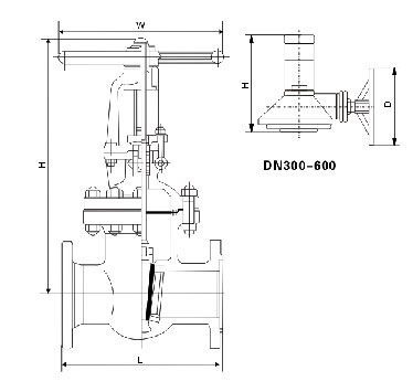
电动不锈钢闸阀1.6MPa主要连接尺寸
|
尺寸
|
DN
|
15
|
20
|
25
|
32
|
40
|
50
|
65
|
80
|
100
|
125
|
150
|
200
|
250
|
300
|
350
|
400
|
450
|
500
|
600
|
|
L
|
mm
|
130
|
150
|
160
|
180
|
200
|
250
|
265
|
280
|
300
|
325
|
350
|
400
|
450
|
500
|
550
|
600
|
650
|
700
|
800
|
|
H
|
mm
|
175
|
180
|
210
|
210
|
350
|
358
|
373
|
435
|
500
|
614
|
674
|
818
|
1225
|
1415
|
1630
|
1780
|
2050
|
2181
|
2599
|
|
W
|
mm
|
180
|
180
|
200
|
200
|
200
|
240
|
240
|
280
|
320
|
360
|
360
|
400
|
450
|
500
|
500
|
600
|
720
|
720
|
720
|
电动不锈钢闸阀2.5MPa主要连接尺寸
|
尺寸
|
DN
|
15
|
20
|
25
|
32
|
40
|
50
|
65
|
80
|
100
|
125
|
150
|
200
|
250
|
300
|
350
|
400
|
450
|
500
|
600
|
|
L
|
mm
|
130
|
150
|
160
|
180
|
200
|
250
|
265
|
280
|
300
|
325
|
350
|
400
|
450
|
500
|
550
|
600
|
650
|
700
|
800
|
|
H
|
mm
|
175
|
180
|
210
|
210
|
350
|
358
|
373
|
435
|
500
|
614
|
674
|
818
|
1225
|
1415
|
1630
|
1780
|
2050
|
2181
|
2599
|
|
W
|
mm
|
180
|
180
|
200
|
200
|
200
|
240
|
240
|
280
|
320
|
360
|
360
|
400
|
450
|
500
|
500
|
600
|
720
|
720
|
720
|
电动不锈钢闸阀4.0MPa主要连接尺寸
|
尺寸
|
DN
|
15
|
20
|
25
|
32
|
40
|
50
|
65
|
80
|
100
|
125
|
150
|
200
|
250
|
300
|
350
|
400
|
|
L
|
mm
|
130
|
150
|
160
|
180
|
200
|
250
|
280
|
310
|
350
|
400
|
450
|
550
|
650
|
750
|
850
|
950
|
|
H
|
mm
|
175
|
180
|
210
|
210
|
350
|
358
|
373
|
435
|
500
|
614
|
674
|
818
|
1225
|
1415
|
1630
|
1780
|
|
W
|
mm
|
180
|
180
|
200
|
200
|
200
|
240
|
240
|
280
|
320
|
360
|
360
|
400
|
450
|
500
|
500
|
600
|
电动不锈钢闸阀6.4MPa主要连接尺寸
|
尺寸
|
DN
|
15
|
20
|
25
|
32
|
40
|
50
|
65
|
80
|
100
|
125
|
150
|
200
|
250
|
300
|
350
|
400
|
|
L
|
mm
|
170
|
190
|
210
|
230
|
240
|
250
|
280
|
320
|
350
|
400
|
450
|
550
|
650
|
750
|
850
|
950
|
|
H
|
mm
|
175
|
180
|
210
|
230
|
350
|
359
|
373
|
435
|
500
|
614
|
674
|
818
|
970
|
1145
|
1280
|
1450
|
|
W
|
mm
|
120
|
120
|
140
|
160
|
200
|
240
|
280
|
320
|
360
|
400
|
400
|
450
|
560
|
640
|
800
|
800
|
电动不锈钢闸阀10.0MPa主要连接尺寸
|
尺寸
|
DN
|
15
|
20
|
25
|
32
|
40
|
50
|
65
|
80
|
100
|
125
|
150
|
200
|
250
|
|
L
|
mm
|
170
|
190
|
210
|
230
|
240
|
250
|
280
|
310
|
350
|
400
|
450
|
550
|
650
|
|
H
|
mm
|
175
|
180
|
210
|
230
|
350
|
359
|
373
|
435
|
500
|
614
|
674
|
818
|
970
|
|
W
|
mm
|
120
|
120
|
160
|
180
|
240
|
280
|
320
|
360
|
400
|
450
|
560
|
640
|
720
|
电动不锈钢闸阀16.0MPa主要连接尺寸
|
尺寸
|
DN
|
15
|
20
|
25
|
32
|
40
|
50
|
65
|
80
|
100
|
125
|
150
|
200
|
|
L
|
mm
|
170
|
190
|
210
|
230
|
240
|
300
|
340
|
390
|
450
|
525
|
600
|
750
|
|
H
|
mm
|
175
|
180
|
210
|
230
|
350
|
359
|
373
|
435
|
500
|
614
|
674
|
818
|
|
W
|
mm
|
120
|
120
|
140
|
160
|
200
|
240
|
280
|
320
|
360
|
400
|
400
|
450
|
上一页:DZ541H伞齿轮低温闸阀 下一页:Z41H法兰闸阀
声明:我公司全力支持关于《中华人民共和国广告法》实施的"极限化违禁词"相关规定,且已竭力规避使用相关"违禁词"等极限化词汇,如果还有"极限化违禁词"用在我公司网站内,我公司声明其全部失效。本声明在我公司网站的所有页面内均有效,所有访问我公司网站的人员、客户均表示默认此内容,不支持任何以"极限用语、极限词、广告违禁词"等为借口或理由来投诉我公司违反《中华人民共和国广告法》或《新广告法》等相关法律,以及以此来索要赔偿等的行为。感谢您的配合与支持,谢谢!

