H72Y对夹式高压止回阀

本逆止阀“ C ”碳钢材质型,系供安装在溶液、液氨、 25% 氨水、氮氨混合气的管道上用的。“ R ”316材质型系供安装在尿素装置管道上,输送尿素及甲胺液用的。
对夹式高压止回阀主要零部件材料:
|
零件名称 |
材料名称用标准牌号 |
材料名称用标准牌号 |
|
阀体 |
合金钢 GB3077-88 40Cr |
尿素级不锈钢 GB1220-92 00Cr17Ni14Mo2 |
|
阀座、阀瓣 |
不锈钢 GB1220-92 2Cr13 |
尿素级不锈钢 GB1220-92 00Cr17Ni14Mo2 |
|
透镜垫 |
优质碳钢 GB699-88 20 |
尿素级不锈钢 GB1220-92 00Cr17Ni14Mo2 |
|
法兰 |
优质碳钢 GB699-88 35 |
优质碳素钢 GB699-88 35 |
|
双头螺栓 |
优质碳钢 GB699-88 40 |
优质碳钢 GB699-88 40 |
|
螺母 |
优质碳钢 GB699-88 25 |
优质碳钢 GB699-88 25 |
|
弹簧 |
弹簧钢 GB1222-84 65Mn |
尿素级不锈钢 GB1220-92 00CR17Ni10Mo2 |
|
O 型密封圈 |
四氟乙烯 日华尔卡 7010 |
四氟乙烯 日华尔卡 7010 |
对夹式高压止回阀性能规范:
|
型号 |
公称压力 |
试验压( MPa ) |
工作压力 |
工作 |
工作介质 |
|
|
强度 |
密封 |
|||||
|
H72Y- 160C |
16 |
24 |
17.6 |
≤ -30-260 |
C :氮、氢、氨 |
|
|
H72Y- 220R |
22 |
33 |
24.2 |
≤ -200-260 |
R :尿素及甲胺液 |
|
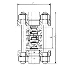
对夹式高压止回阀主要外形尺寸:

|
H72Y-160C H72W-220R |
|||||||
|
公称通径 |
D |
D1 |
D |
M |
L |
L1 |
重量( kg ) |
|
15 |
95 |
42 |
12 |
M24*2 |
60 |
158 |
4.1 |
|
25 |
105 |
50 |
15 |
M33*2 |
65 |
163 |
6.9 |
|
32 |
115 |
62 |
25 |
M42*2 |
80 |
180 |
8.0 |
|
40 |
165 |
88 |
32 |
M52*2 |
90 |
230 |
15.0 |
|
50 |
165 |
88 |
39 |
M64*3 |
115 |
265 |
27.0 |
|
65 |
200 |
116 |
53 |
M80*3 |
140 |
315 |
49.0 |
|
80 |
225 |
138 |
60 |
M100*3 |
160 |
360 |
88.0 |
|
100 |
260 |
160 |
76 |
M120*4 |
180 |
420 |
91.0 |
|
125 |
300 |
195 |
90 |
M155*4 |
200 |
460 |
115.0 |
|
150 |
330 |
212 |
120 |
M175*4 |
220 |
500 |
145.0 |
|
200 |
425 |
265 |
176 |
M240*6 |
240 |
570 |
160.0 |
|
H72Y-220C H72W-320R |
|||||||
|
公称通径 |
D |
D1 |
D |
M |
L |
L1 |
重量( kg ) |
|
10 |
95 |
42 |
10 |
M24*2 |
60 |
155 |
3.4 |
|
15 |
105 |
50 |
12 |
M33*2 |
65 |
158 |
4.5 |
|
25 |
115 |
62 |
23 |
M42*2 |
80 |
180 |
7.3 |
|
32 |
135 |
70 |
29 |
M48*2 |
90 |
200 |
8.7 |
|
40 |
165 |
88 |
34 |
M64*3 |
115 |
255 |
17.0 |
|
50 |
200 |
116 |
53 |
M80*3 |
140 |
300 |
30.0 |
|
65 |
225 |
138 |
60 |
M100*3 |
160 |
345 |
56.0 |
|
80 |
260 |
160 |
68 |
M125*4 |
180 |
410 |
92.0 |
|
100 |
300 |
195 |
85 |
M155*4 |
200 |
470 |
109.0 |
|
125 |
330 |
212 |
120 |
M175*4 |
220 |
510 |
135.0 |
|
150 |
400 |
250 |
135 |
M215*6 |
240 |
570 |
160.0 |
|
200 |
480 |
320 |
176 |
M265*6 |
280 |
670 |
180.00 |

